Accumulator Bracket
Finished brackets to secure the accumulator to the chassis
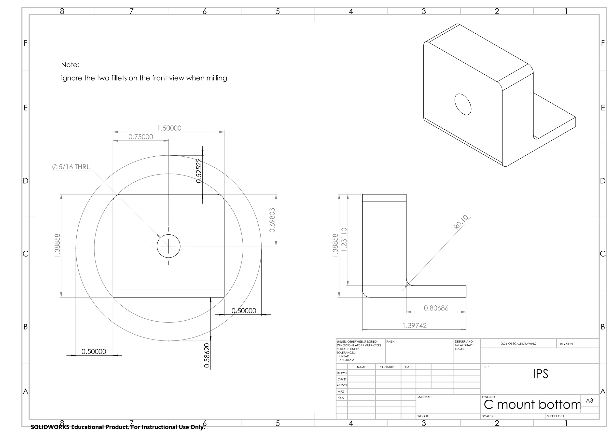
Engineering drawing of the bracket
I machined two brackets whose purpose is to support and secure the accumulator to the chassis. This project requires high precision and ensuring that the important dimensions are not cut too short.
Role
Machinist
Project highlights
- Improved operating skills in different types of machine: milling, boring, grinding, band-saw 
- Became more aware of the risks and safety precautions around metal processing machines 
- Each mount took 4 hours to complete, from a bare aluminum cylinder to the finished brackets 
- Made use of assistive tools such as vernier caliper and clamps 
Tools
- Software: SolidWorks 
- Machines: Milling, boring, grinding, band-saw 
The position of the six brackets within the car, supporting the accumulator’s load
 
            
            
          
               
            
            
          
               
            
            
          
               
            
            
          
               
            
            
          
               
            
            
          
               
            
            
          
              